VISHUDDH PROPERTIES – SLNS AVYUKTHA GROUP

About Nirvana Nature Healing

About Project

About Nirvana Nature Healing

Welcome to Nirvana Nature Healing, a premium wellness retreat near Nandi Hills within Canterbury Orchards Phase 1, spread across 5 acres with 84 luxurious villas designed for peaceful and healthy living. Offering spacious 2 & 3 BHK villas, the project blends comfort, nature, and investment value with steady rental income opportunities and long-term appreciation. Residents can enjoy world-class wellness amenities including steam rooms, saunas, massage rooms, a swimming pool, a healing center surrounded by therapeutic plants, an 8-shaped nature walk, reflexology area, and a grand clubhouse for recreation and relaxation, creating the perfect balance of luxury, wellness, and smart investment.

Wellness Features

Experience Nature Inspired Living

Acupuncture

Aromatherapy

Hydrotherapy

Pool

Physiotherapy

8-shaped Nature Trail

Reflexology Trail

Steam & Sauna Room

Embraced by Nature

Investor Privileges

Zen Garden

Banyan Tree

Medical Plants

1-5 Plots Treatment Centre

85 Plots

NNH Wellness Centre Overview

The wellness centre will be operated by renowned experts in naturopathy and holistic health, including Dr. B.T. Chidananda Murthy, a well-respected name in the field.

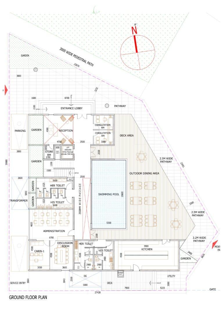
Centre Layout & Facilities

Ground Floor

  • Reception lobby
  • Consultation rooms
  • Swimming pool
  • Healthy kitchen & restaurant

First Floor

  • Women’s therapy zone
  • Physiotherapy section
  • Advanced hydrotherapy equipment

Second Floor

  • Men’s therapy zone
  • Acupuncture suites
  • Naturopathy treatment rooms

Third Floor

  • Yoga hall
  • Meditation space

Experience & Lifestyle

  • Designed to offer a complete holistic wellness experience
  • Combines modern facilities with natural healing therapies
  • A dedicated wellness hub for residents and guests

Wellness Center Elevation

Wellness Centre Floor Plan

LOCATION HIGHLIGHTS

Prime Connectivity & Serene Surroundings

Nandi Hills Ropeway

Bhoga Nandeeshwara Temple

Isha Center

Nandi Hills Sunrise Points

Foxconn & IT Park

Skandagiri Hill Trek

LAYOUT PLAN​

Master Planned Wellness Community

Project Layout

PROJECT VIDEO

Explore the Project Through an Immersive Video Tour

Fill out the form below to get your brochure!

    LOCATION